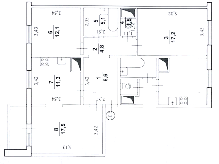
Ремонт 3-х комнатной квартиры
Стояла задача выполнить ремонт 3 комнатной квартиры под ключ на улице Богдановича в панельном доме. В квартире уже был ремонт от застройщика. Мы произвели демонтаж обоев и шпатлевки, которая мешала нанесению штукатурки на стены. На полу был старый линолеум. После зачистки от старых материалов выполнили выравнивание стен и пола, заменили радиаторы отопления, проложили дополнительную проводку. В раздельном санузле уложили плитку, заменили трубы, установили новую ванну, раковину и унитаз. В комнатах поклеили обои, на пол уложили замковый кварцвинил, установили межкомнатные двери. В конце смонтировали белый матовый натяжной потолок.
Расположение в Астане
Как меняется Ваша квартира в процессе Pin Up
Преимущества сотрудничества с нами
Официальный договор
Даем официальную гарантию
Без предоплат
Оплачиваете только выполненную работу
Смета
Бесплатная консультация и калькуляция по всем Pin Up
Материалы
Закупаем и доставляем на объект без Pin Up
Инструмент
Используем только самое современное оборудование
Профессионализм
Полный штат Pin Up по всем направлениям с опытом более 10 лет

Наши отзывы
































